有线电视安装费详解与省钱技巧
想要了解室内有线电视安装费用吗?本文将深入解析有线电视系统的构成,包括前端箱、馈电器、放大器、混合器、分配器、分支器等关键组件的作用,以及75Ω同轴电缆的型号选择和管线敷设规范。同时,详细介绍插座的安装标准和工程量计算方法,参照强电插座定额,避免遗漏套接管和插座盒的计算。更有进户管、干线、支线长度的计算公式,助您全面掌握有线电视安装的各个环节,为合理预估安装费用提供参考,**本文以河北省为例,依据有线电视系统相关定额,执行第十二章标准。**
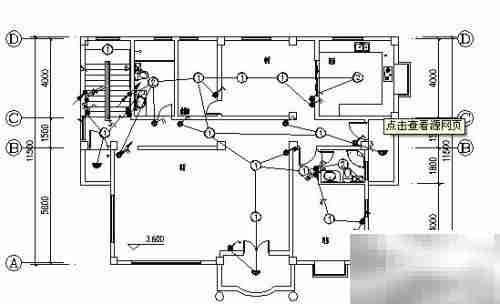
有线电视系统由入户前端箱、管线以及插座构成,其安装方式与照明系统相近。
1、 前端箱
2、 箱内集成有馈电器、放大器,以及混合器、分配器和分支器等组件。
3、 馈电器提供24V直流电源输出。
4、 放大器的作用是提升电视信号的强度,确保传输质量。
5、 混合器可将多个频道的信号整合为一路,通过一条主线路进行传输。
6、 分配器能够将一路信号平均分配至多个输出端口。
7、 分支器用于从主线中引出支路信号,但各支路信号强度不均等。

8、 管线敷设
9、 使用75Ω同轴电缆,主干线路采用SYV-75-9型号,分支线路使用SYV-75-5。主干线穿焊接钢管保护,分支线则穿PVC管,各楼层均设有电视分线箱。保护管在土建施工阶段已预埋,沿墙及地面布设,分线箱的安装高度一般为1.4米。

10、 插座安装
11、 插座距地0.3米安装,每户不少于两个,允许采用串联连接方式。工程量计算时参照强电插座的相关定额执行。虽然存在专门针对电视插座的定额子目,但仅适用于后期明装且未预埋的情况。施工过程中必须提前预埋插座底盒,该底盒即普通插座所用的塑料盒;而在车间等特殊环境中,则应选用金属材质的接线盒。

12、 进户管总长度 = 室外1.5米 + 室内外高差 + 沟深 + 外墙至箱体距离 + 箱体安装高度
13、 进户线总长度包括进户管长度及箱体内预留长度
14、 干线长度 = 前端箱至各分户箱之间的管长加预留长度
15、 支线长度 = 分户箱到各个插座之间的管线长度加上预留线缆长度
16、 统计所需箱体数量
17、 统计插座总数

18、 依据有线电视系统相关定额,河北省执行第十二章标准。
19、 注意不要遗漏套接管和插座盒的工程量计算。
20、 未计入价格的主材需根据当期信息价进行调整。
21、 相关费用应按照信息价说明进行设定。

理论要掌握,实操不能落!以上关于《有线电视安装费详解与省钱技巧》的详细介绍,大家都掌握了吧!如果想要继续提升自己的能力,那么就来关注golang学习网公众号吧!
UC网盘大文件上传技巧分享
- 上一篇
- UC网盘大文件上传技巧分享
- 下一篇
- 剪映PC版视频分割技巧全解析
-
- 文章 · 软件教程 | 5分钟前 |
- 批量改名技巧:rename命令实用指南
- 216浏览 收藏
-
- 文章 · 软件教程 | 6分钟前 |
- Windows设置bat脚本开机自启动方法
- 117浏览 收藏
-
- 文章 · 软件教程 | 12分钟前 |
- Win11画图3D怎么打开及使用方法
- 113浏览 收藏
-
- 文章 · 软件教程 | 13分钟前 | 久久小说网
- 久久小说网书签使用教程及管理方法
- 114浏览 收藏
-
- 文章 · 软件教程 | 16分钟前 | ppt 成品PPT
- 免费PPT网站推荐:实用模板一键下载
- 327浏览 收藏
-
- 文章 · 软件教程 | 22分钟前 | Outlook邮箱
- Outlook官网登录入口及最新网址
- 290浏览 收藏
-
- 文章 · 软件教程 | 23分钟前 |
- 乡村旅游的内涵和现实意义
- 413浏览 收藏
-
- 文章 · 软件教程 | 23分钟前 |
- Win11无法打开组策略编辑器解决方法
- 220浏览 收藏
-
- 文章 · 软件教程 | 25分钟前 |
- Excel数据透视表刷新方法详解
- 119浏览 收藏
-
- 文章 · 软件教程 | 28分钟前 |
- Excel快速填充空白单元格技巧
- 270浏览 收藏
-
- 文章 · 软件教程 | 31分钟前 |
- 企查查如何通过人名查公司信息
- 310浏览 收藏
-
- 文章 · 软件教程 | 34分钟前 |
- Windows10刷新率调高方法详解
- 143浏览 收藏
-
- 前端进阶之JavaScript设计模式
- 设计模式是开发人员在软件开发过程中面临一般问题时的解决方案,代表了最佳的实践。本课程的主打内容包括JS常见设计模式以及具体应用场景,打造一站式知识长龙服务,适合有JS基础的同学学习。
- 543次学习
-
- GO语言核心编程课程
- 本课程采用真实案例,全面具体可落地,从理论到实践,一步一步将GO核心编程技术、编程思想、底层实现融会贯通,使学习者贴近时代脉搏,做IT互联网时代的弄潮儿。
- 516次学习
-
- 简单聊聊mysql8与网络通信
- 如有问题加微信:Le-studyg;在课程中,我们将首先介绍MySQL8的新特性,包括性能优化、安全增强、新数据类型等,帮助学生快速熟悉MySQL8的最新功能。接着,我们将深入解析MySQL的网络通信机制,包括协议、连接管理、数据传输等,让
- 500次学习
-
- JavaScript正则表达式基础与实战
- 在任何一门编程语言中,正则表达式,都是一项重要的知识,它提供了高效的字符串匹配与捕获机制,可以极大的简化程序设计。
- 487次学习
-
- 从零制作响应式网站—Grid布局
- 本系列教程将展示从零制作一个假想的网络科技公司官网,分为导航,轮播,关于我们,成功案例,服务流程,团队介绍,数据部分,公司动态,底部信息等内容区块。网站整体采用CSSGrid布局,支持响应式,有流畅过渡和展现动画。
- 485次学习
-
- ChatExcel酷表
- ChatExcel酷表是由北京大学团队打造的Excel聊天机器人,用自然语言操控表格,简化数据处理,告别繁琐操作,提升工作效率!适用于学生、上班族及政府人员。
- 4224次使用
-
- Any绘本
- 探索Any绘本(anypicturebook.com/zh),一款开源免费的AI绘本创作工具,基于Google Gemini与Flux AI模型,让您轻松创作个性化绘本。适用于家庭、教育、创作等多种场景,零门槛,高自由度,技术透明,本地可控。
- 4581次使用
-
- 可赞AI
- 可赞AI,AI驱动的办公可视化智能工具,助您轻松实现文本与可视化元素高效转化。无论是智能文档生成、多格式文本解析,还是一键生成专业图表、脑图、知识卡片,可赞AI都能让信息处理更清晰高效。覆盖数据汇报、会议纪要、内容营销等全场景,大幅提升办公效率,降低专业门槛,是您提升工作效率的得力助手。
- 4463次使用
-
- 星月写作
- 星月写作是国内首款聚焦中文网络小说创作的AI辅助工具,解决网文作者从构思到变现的全流程痛点。AI扫榜、专属模板、全链路适配,助力新人快速上手,资深作者效率倍增。
- 6118次使用
-
- MagicLight
- MagicLight.ai是全球首款叙事驱动型AI动画视频创作平台,专注于解决从故事想法到完整动画的全流程痛点。它通过自研AI模型,保障角色、风格、场景高度一致性,让零动画经验者也能高效产出专业级叙事内容。广泛适用于独立创作者、动画工作室、教育机构及企业营销,助您轻松实现创意落地与商业化。
- 4834次使用
-
- pe系统下载好如何重装的具体教程
- 2023-05-01 501浏览
-
- qq游戏大厅怎么开启蓝钻提醒功能-qq游戏大厅开启蓝钻提醒功能教程
- 2023-04-29 501浏览
-
- 吉吉影音怎样播放网络视频 吉吉影音播放网络视频的操作步骤
- 2023-04-09 501浏览
-
- 腾讯会议怎么使用电脑音频 腾讯会议播放电脑音频的方法
- 2023-04-04 501浏览
-
- PPT制作图片滚动效果的简单方法
- 2023-04-26 501浏览

